60 huurappartementen - Goes
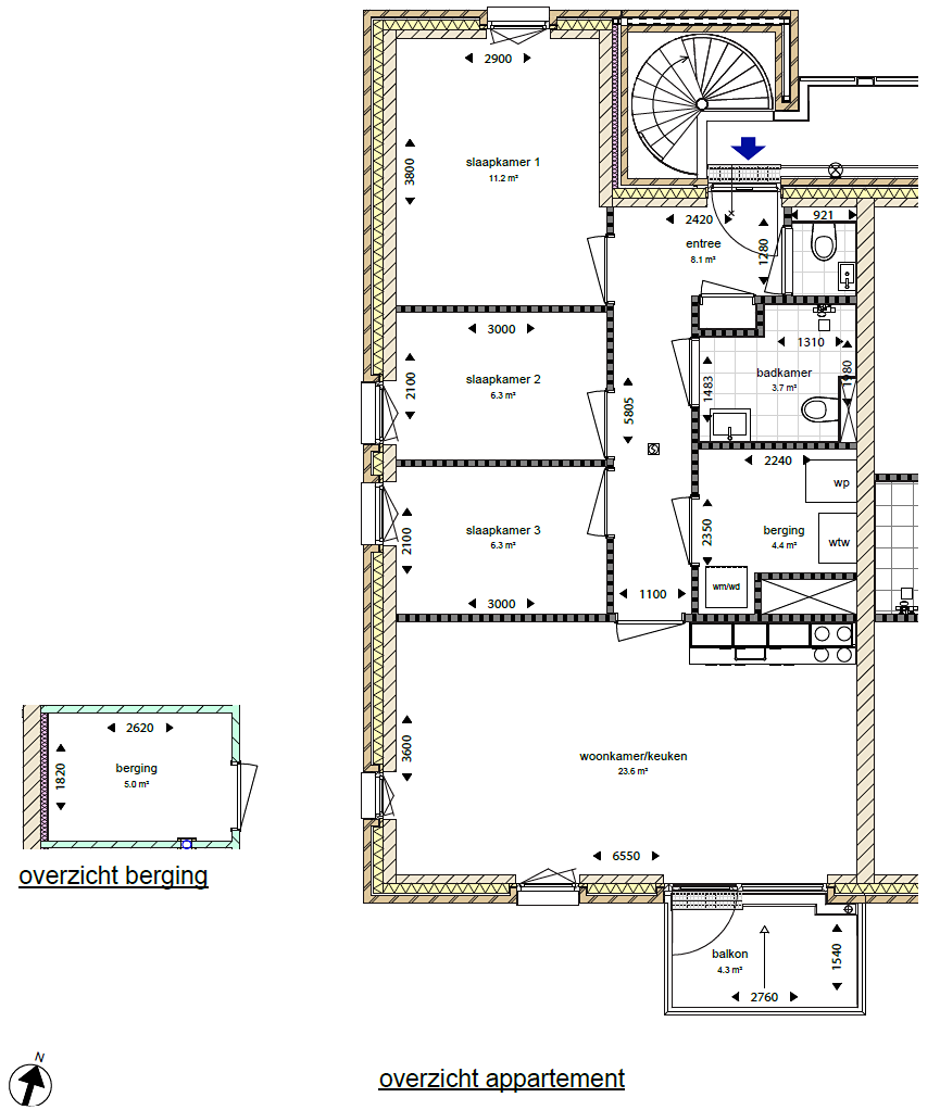
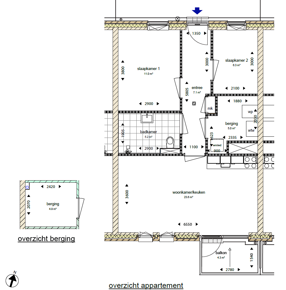
In de Nachtegaallaan in Goes worden in totaal 82 appartementen gebouwd verdeeld over vier woongebouwen. De appartementen bestaan uit twee verschillende woningtypes, met 2 of 3 slaapkamers, bedoeld voor 1-, 2- of 3-persoonshuishoudens.
Fase 2 bestaat uit drie woongebouwen met in totaal 60 appartementen in de huursector.
Appartement tussen
Appartement hoek
